En algún lugar del video sobre mi banco de carpintería digo, siguiendo a Christopher Schwarz, que un banco es un gran objeto tridimensional para prensar cosas, para sostener objetos mientras se trabaja con ellos. En estos días vi esa idea en acción.
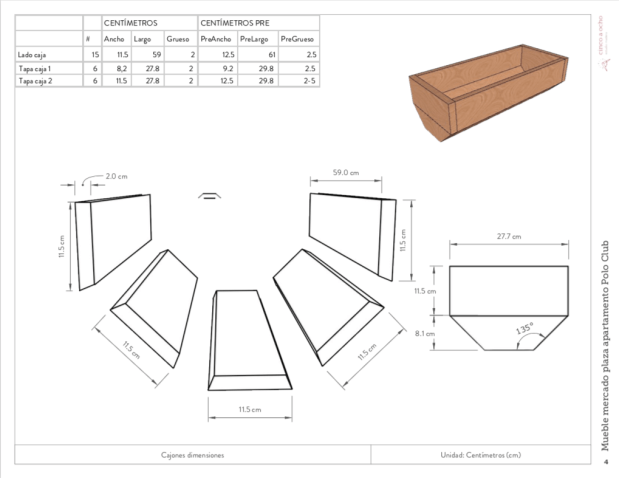
Estoy trabajando en un mueble para las verduras y frutas en el nuevo apartamento. Son cuatro cajones formados por medios octágonos (ApartamentoPolo_MuebleNevera).



Empecé por hacer uno de los cajones, a modo de prototipo, aunque realmente el prototipo es todo el mueble. Preví que sería difícil cortar los ángulos y luego pegar. Decidí hacer el armado con tarugos que me ayudaran a alinear las partes, pero prensar seguía siendo un rato. El banco fue fundamental para lograrlo. Fue un trabajo en dos pasos que creo que la próxima vez podré hacer en uno solo.
